Posts Tagged “vente immobilière”
Publié par JMS dans , tags: 33, accueil, Aquitaine, Bordeaux, bordelais, construction, Gironde, immobilier, lotissement, maison, région de Bordeaux, terrain à batir, terrain constructible, vente de terrains, vente immobilière
Jean-Marie SEVERINI
Aménageur Foncier
Tél : 06.333.843.70

Commentaires fermés sur
Publié par JMS dans , tags: Aquitaine, bordelais, Cabanac, Canejan, construction, Gradignan, immobilier, le teich, lotissement, Moulis, région de Bordeaux, terrain à batir, vente de terrains, vente immobilière
Commentaires fermés sur Programmes réalisés
| Agrandir le plan |
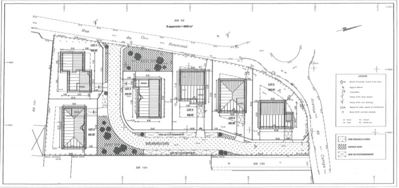
PRÉSENTATION DE LA COMMUNE
Avec 80 % de son territoire couverts de forêt, la commune du TEICH est considérée comme la ville « nature » du Bassin d’Arcachon.
A la fois tournée vers le tourisme et le développement économique et très bien desservie, avec sa gare SNCF et les infrastructures routières, la commune du TEICH vous offre tous les services du quotidien, écoles, collège, commerces etc. |
La « Villa HIBISCUS », avec ses six villas de plain-pied, vous accueillera au calme, à 800 m du centre ville.

Présentation des lots :
 Vue lot 1/2/3
Lot 1 :
Maison de plain-pied avec séjour traversant, cuisine + cellier, 3 chambres avec placard, bureau, salle de bain avec baignoire et douche, WC indépendant, garage + 1 parking extérieur, jardin clôturé.
– T5 de 97 m² sur terrain d’environ 486 m²
Lot 2 :
Maison de plain-pied avec séjour traversant de 35 m², cuisine + cellier, 3 chambres avec placard, bureau, salle de bain avec baignoire et douche, WC indépendant, garage + 1 parking extérieur, jardin clôturé.
– T5 de 98 m² sur terrain d’environ 447 m²
Lot 3 :
Maison de plain-pied avec séjour traversant, cuisine + cellier, 3 chambres avec placard, bureau, salle de bain avec baignoire et douche, WC indépendant, garage + 1 parking extérieur, jardin clôturé.
– T5 de 97 m² sur terrain d’environ 445 m²
 Vue lot 4/5/6
Lot 4 :
Maison de plain-pied avec séjour en L de 35 m² avec double exposition, cuisine, 3 chambres avec placard, salle de bain, WC indépendant, garage + 1 parking extérieur, jardin clôturé.
– T4 de 85 m² sur terrain d’environ 468 m²
Lot 5 :
Maison de plain-pied avec séjour en L de 43 m² avec double exposition, cuisine, 3 chambres avec placard, salle de bain, WC indépendant, garage + 1 parking extérieur, jardin clôturé.
– T4 de 92 m² sur terrain d’environ 447 m²
Lot 6 :
Maison de plain-pied avec séjour de 34 m² avec double exposition, cuisine, 3 chambres avec placard, salle de bain, WC indépendant, garage + 1 parking extérieur, jardin clôturé.
– T4 de 85 m² sur terrain d’environ 482 m²
Commentaires fermés sur Le Teich
Publié par jms dans , tags: 33, Aquitaine, bordelais, construction, Gironde, Gradignan, immobilier, lotissement, maison, région de Bordeaux, terrain à batir, terrain constructible, vente de terrains, vente immobilière

LOTISSEMENT ST FRANÇOIS XAVIER
109 rue St François Xavier
Et rue de Martinon
33170 GRADIGNAN
Voir sur google maps
Magnifiques terrains à proximité du centre de GRADIGNAN, secteur calme et résidentiel
Pour plus d’informations, prenez CONTACT.

 

Commentaires fermés sur Gradignan rue St François Xavier
Publié par JMS dans , tags: 33, Aquitaine, Bordeaux, bordelais, construction, Gironde, immobilier, lotissement, maison, Moulis, région de Bordeaux, terrain à batir, terrain constructible, vente de terrains, vente immobilière
32 rue Fontaine
MOULIS
Voir sur google maps
Centre de Moulis, très calme, environnement résidentiel, réalisation de villa T4



.
| MAISON |
|
| 100 M2, entrée, séjour salon avec cheminée, cuisine 11 m2, 3 chambres, salle de bains, l’ensemble refait totalement à neuf, y compris l’électricité et sanitaires. Terrain : 750 m2 |
|

Notaire vendeur : Maître Stéphane MASSIE, 33170 Gradignan, Tel 05.56.89.11.19
Géomètre : Cabinet PARIES, 33170 Gradignan, Tel : 05.56.89.09.54
Pour plus d’informations, prenez CONTACT.
Commentaires fermés sur Moulis
Publié par jms dans , tags: 33, Aquitaine, Bordeaux, bordelais, Canejan, construction, Gironde, immobilier, lotissement, maison, région de Bordeaux, terrain à batir, terrain constructible, vente de terrains, vente immobilière
Chemin de Lartigue
CANEJAN
Réalisation de villas T5





Notaire vendeur : Maître Stéphane MASSIE, 33170 Gradignan, Tel 05.56.89.11.19
Géomètre : Cabinet PARIES, 33170 Gradignan, Tel : 05.56.89.09.54

Pour plus d’informations, prenez CONTACT.
Commentaires fermés sur Canejan
Publié par jms dans , tags: 33, Aquitaine, Bordeaux, bordelais, Cabanac, construction, Gironde, immobilier, lotissement, maison, région de Bordeaux, terrain à batir, terrain constructible, vente de terrains, vente immobilière
DOMAINE DU GASSIE
44 route des Graves
33650 Cabanac
Voir sur google maps
 Vue aérienne et plan de composition
Viabilités : eau, téléphone, électricité.
Assainissement : individuel
Le réseau eaux usé est installé mais n’est pas en fonction. Ultérieurement, mais sans date précise, la commune intégrera le réseau au sien.
SHON par lot : 250 m2
 Plan de composition.
PRIX DES TERRAINS
| N° LOT |
SURFACE |
PRIX |
|
| 1 |
850 M2 |
OPTION |
|
| 2 |
850 M2 |
OPTION |
|
| 3 |
904 M2 |
OPTION |
|
| 4 |
1031 M2 |
OPTION |
|
| 5 |
1032 M2 |
OPTION |
|
| 6 |
1031 M2 |
OPTION |
|
| 7 |
1001 M2 |
OPTION |
|
| 8 |
1063 M2 |
OPTION |
|
| 9 |
990 M2 |
75000 EUROS |
|
Notaire vendeur : Maître Stéphane MASSIE, 33170 Gradignan, Tel 05.56.89.11.19
Géomètre : Cabinet PARIES, 33170 Gradignan, Tel : 05.56.89.09.54

Pour plus d’informations, prenez CONTACT.


Commentaires fermés sur Cabanac
Publié par JMS dans , tags: 33, Aquitaine, Bordeaux, bordelais, Cabanac, Canejan, construction, contact, Gironde, immobilier, lotissement, maison, Moulis, région de Bordeaux, terrain à batir, terrain constructible, vente de terrains, vente immobilière
Renseignements complémentaires soit :
Jean-Marie SEVERINI
06.333.843.70
jeanmarie.severini@gmail.com
cforms contact form by delicious:days
Commentaires fermés sur Contact
Publié par JMS dans , tags: 33, Aquitaine, Bordeaux, bordelais, construction, Gironde, immobilier, lotissement, maison, mentions legales, région de Bordeaux, terrain à batir, terrain constructible, vente de terrains, vente immobilière
Les informations vous concernant recueillies sur ce site sont seulement utilisées pour le traitement de votre demande. Elles ne seront jamais transmises ou échangées à des tiers.
Toutes les informations regroupées sur ce site (y compris les tarifs) sont données sous réserve d’erreur typographique.
Site optimisé pour un affichage en 1024X768 pour Firefox (fonctionne sur internet explorer).
Plus d’infos sur l’éditeur : www.monsitepascher.fr
Pas de commentaire »
|